Cod. 2120
Zona: SANDRIGO - Spazi ampi e luminosi, molto funzionali, finiture curate, zona tranquilla ricca di aree verdi e parcheggi, a pochi passi dal centro del paese e da tutti i principali servizi, giardino di proprietà ideale per pranzare all'aria aperta con i propri famigliari e amici, locali accessori capienti e multi-uso sono solo alcune delle caratteristiche che rendono questa villetta la casa perfetta che stavi aspettando.
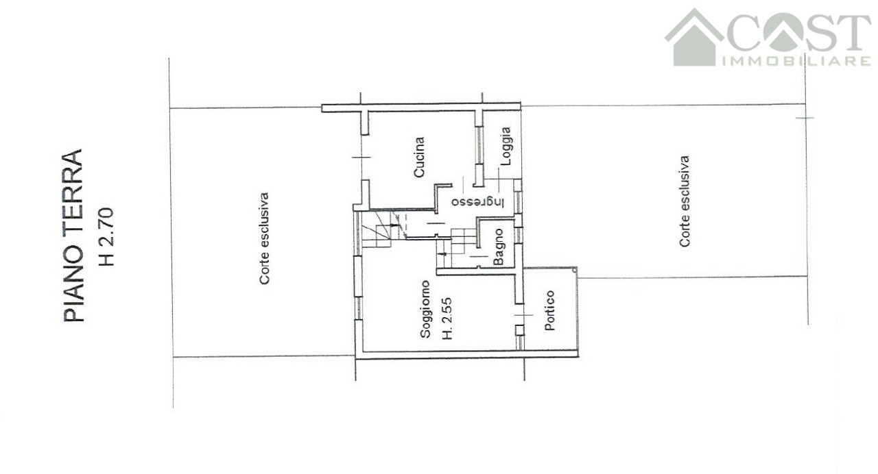
La casa è stata parzialmente ristrutturata nel 2020 e in particolare sono stati rifatti l'impianto elettrico, i bagni, il pavimento della cucina, dell'ingresso e delle scale, levigato e schiarito il pavimento della sala e delle camere, installata una stufa a legna che riscalda tutta la casa, ecc. La casa è dotata di climatizzatore e si sviluppa su piani sfalsati che la rendono ariosa e originale; si compone di ingresso separato dal grazioso giardino sul fronte, cucina abitabile con uscita su giardino sul retro con caminetto e spazio coperto per mangiare all'aperto, salone con terrazzo/portico molto riservato, due bagni, tre camere, una loggia, ampio garage, comodo angolo lavanderia, centrale termica/ripostiglio e stanza attualmente utilizzata come magazzino ma che può tranquillamente essere sfruttata come tavernetta. Ottima occasione per chi cerca una soluzione indipendente parzialmente arredata senza lavori da eseguire con delle comode metrature.
- Stato Immobile: Ristrutturato
- Mq: 171
- Numero Camere: 3
- Bagni: 2
- Spese Condominiali: n.d.
- Piano:
- N. Condomini: 8
- Livelli Interni: 3
- Anno Costruzione: 1984
- Anno Ristrutturazione: 2020
- Riscaldamento: autonomo
- Mq Giardino Esclusivo: 150
- Garage: SI Singolo (29 Mq)
- Terrazzi: 2
- Classe energetica:

- kWh/mq anno: 164.12
Condividi questo immobile su: