Cod. 2111
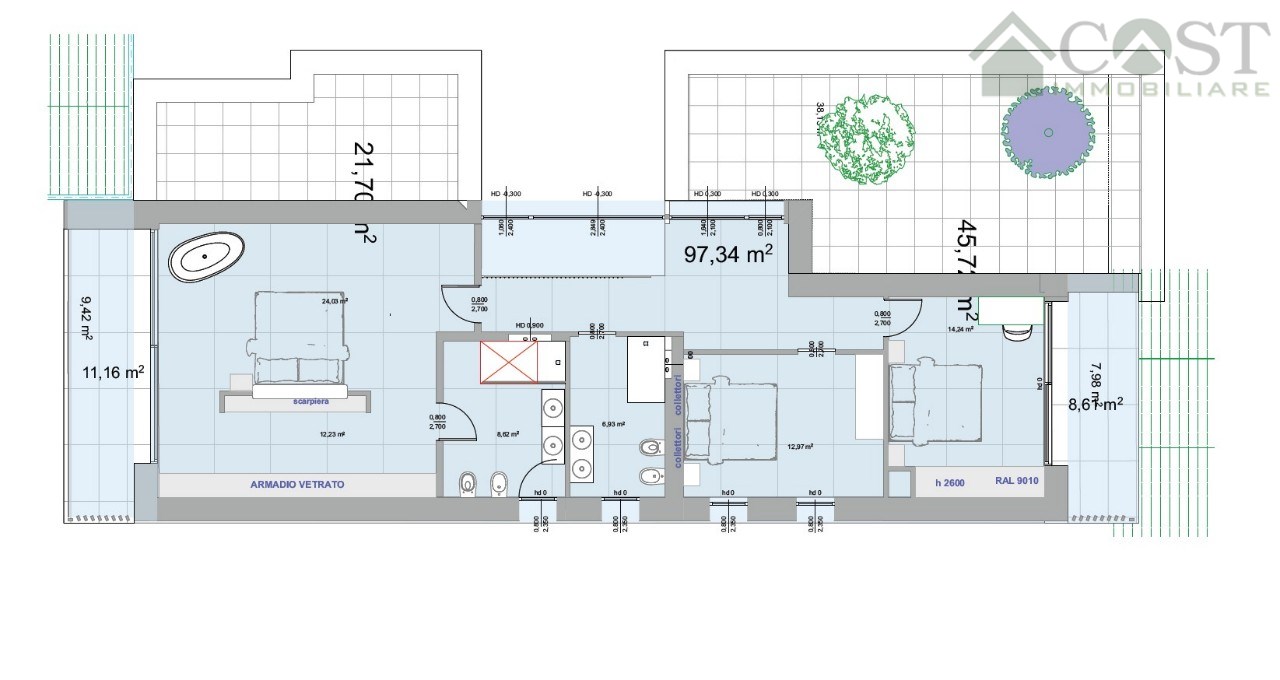
Zona: CAVAZZALE - Occasione di villa singola su lotto di oltre 1000 mq in tranquilla zona residenziale esclusiva e riservata, attualmente al grezzo, dal design moderno con grandi vetrate per dare la massima luminosità agli ambienti. Il Piano Terra è composto da una zona giorno molto ampia affacciata sul giardino interno confinante con dei terreni agricoli, un bagno di servizio ed una zona separata progettata per ricavare all'occorrenza altre due stanze ed un secondo bagno in maniera molto indipendente. La parte superiore dell'abitazione prevede altre tre camere ed in particolare una con bagno padronale e cabina armadio oltre al secondo bagno del reparto notte. La soluzione è ideale per famiglie o coppie con la necessità di ricavare anche degli ambienti indipendenti da dedicare a ospiti o avere uno studio per la propria attività da svolgere in casa. Il prezzo si riferisce per l'acquisto allo stato attuale ma su richiesta può essere venduta finita chiavi in mano. Maggiori informazioni e dettagli disponibili in ufficio.
- Stato Immobile: In costruzione
- Mq: 366
- Numero Camere: 4
- Bagni: 4
- Spese Condominiali: n.d.
- Piano:
- N. Condomini: 1
- Livelli Interni: 2
- Anno Costruzione: 2025
- Anno Ristrutturazione: n.d.
- Riscaldamento: autonomo
- Mq Giardino Esclusivo: 0
- Garage: NO Doppio
- Terrazzi: 2
- Classe energetica:

- kWh/mq anno: 0.4
Condividi questo immobile su: