Cod. 2147
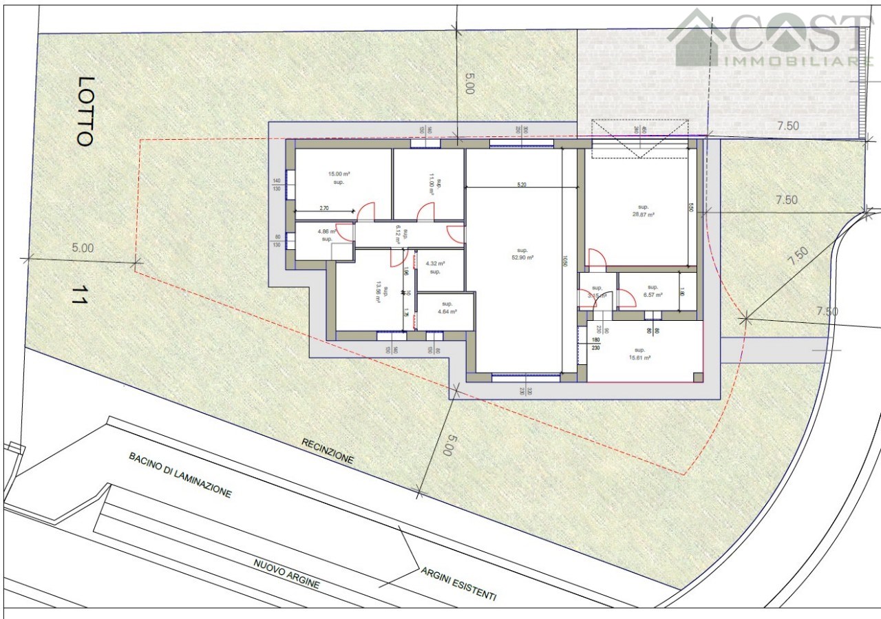
Zona: CRESOLE - Proponiamo la vendita di un lotto di terreno edificabile già urbanizzato di 800 MQ con 940 MC sviluppabili, ideale per la costruzione di una importante Villa singola su unico livello, o di una bifamiliare su due livelli. La posizione risulta essere strategica ed ottimamente collegata tramite pista ciclabile e mezzi pubblici sia con il Comune di Caldogno che verso la città di Vicenza. La lottizzazione di cui fa parte il terreno offre ampi parcheggi ed aree verdi. La nostra agenzia sta collaborando con una impresa di fiducia per dare la possibilità di acquistare anche l'immobile finito "chiavi in mano" concordando il progetto adattato alle proprie esigenze. Per ulteriori informazioni e dettagli non esitate a chiamare!
- Stato Immobile: n.d.
- Mq: 800
- Numero Camere: 0
- Bagni: 0
- Spese Condominiali: n.d.
- Piano: Ultimo
- N. Condomini: 0
- Livelli Interni: 0
- Anno Costruzione: n.d.
- Anno Ristrutturazione: n.d.
- Riscaldamento:
- Mq Giardino Esclusivo: 0
- Garage: NO
- Terrazzi: 0
- Classe energetica: In corso di definizione

- kWh/mq anno: n.d.
Condividi questo immobile su: