Cod. 2156
Zona: POIANELLA - Cost Immobiliare è lieta di presentare una nuova iniziativa immobiliare: il "RESIDENCE TERGOLA" che sorgerà all'interno di una recente lottizzazione a due passi dai servizi ed immersa nel verde della campagna. Il progetto prevede la realizzazione di 7 esclusive unità abitative, ognuna con il rispettivo garage e posto auto privato. Il fabbricato si sviluppa su soli due piani fuori terra ed abbina l'eleganza architettonica alla qualità costruttiva garantendo il massimo comfort abitativo della classe energetica A4.
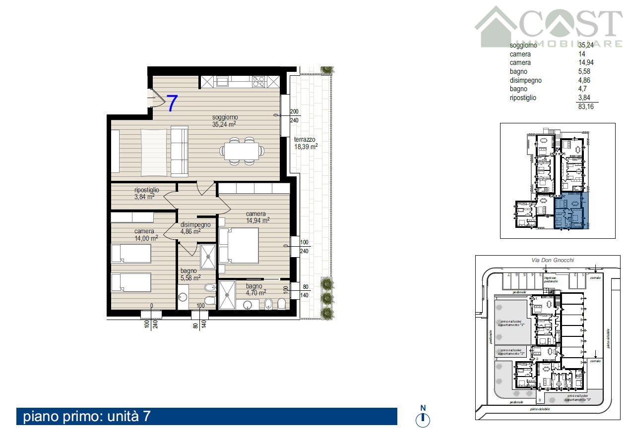
L'abitazione che descriviamo è un BICAMERE al primo ed ultimo piano con terrazzo abitabile di oltre 18mq, caratterizzato da una ampia zona giorno openspace, due camere matrimoniali, due bagni finestrati (uno dei quali padronale), ripostiglio con possibilità di essere attrezzato ad uso lavanderia. Ampio garage al piano terra e posto auto privato di proprietà.
Venite a scoprire questa interessante opportunità presso il nostro ufficio!
- Stato Immobile: Nuova costruzione
- Mq: 122
- Numero Camere: 2
- Bagni: 2
- Spese Condominiali: n.d.
- Piano: Attico
- N. Condomini: 7
- Livelli Interni: 0
- Anno Costruzione: 2026
- Anno Ristrutturazione: n.d.
- Riscaldamento: autonomo
- Mq Giardino Esclusivo: 0
- Garage: SI Singolo (23 Mq)
- Terrazzi: 0
- Classe energetica:

- kWh/mq anno: 0.15
Condividi questo immobile su: