Cod. 2123
Zona: Bolzano Vicentino - Introvabile soluzione di Nuova Villa singola su unico livello al piano terra con giardino di circa 1700mq a 5 minuti da Vicenza!
Se stai cercando una soluzione abitativa che abbia un alto livello di confort abitativo in classe A4, delle generose metrature sia interne che esterne, finiture pregiate; questa è la soluzione giusta!
La posizione è strategica per la vicinanza alla città ed al casello autostradale di Vicenza nord ma in zona verdeggiante interna e tranquilla, con completa indipendenza e privacy.
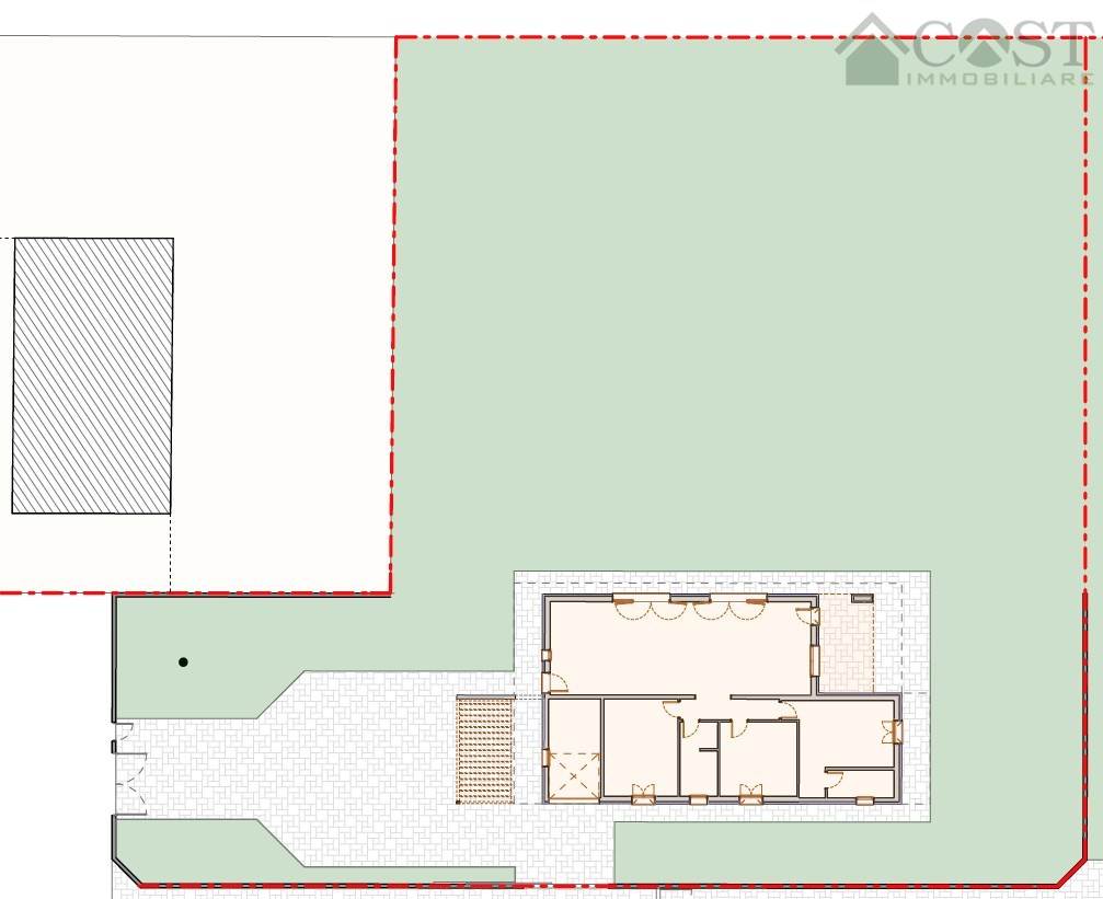
L'immobile si compone da: zona giorno openspace di oltre 65mq molto luminosa con grandi vetrate travata in legno a vista, portico esterno affacciato sul giardino di 1700mq confinante con la campagna, tre camere matrimoniali, due bagni, un garage e pompeiana per due auto oltre ad una parte piastrellata interna la proprietà che da la possibilità di parcheggiare altre auto per gli ospiti o il rimessaggio di un camper.
Chiama subito per venirla a vedere!
- Stato Immobile: Nuova costruzione
- Mq: 220
- Numero Camere: 3
- Bagni: 2
- Spese Condominiali: n.d.
- Piano: Attico
- N. Condomini: 1
- Livelli Interni: 1
- Anno Costruzione: 2025
- Anno Ristrutturazione: n.d.
- Riscaldamento: autonomo
- Mq Giardino Esclusivo: 1.700
- Garage: SI Singolo (15 Mq)
- Terrazzi: 0
- Classe energetica:

- kWh/mq anno: 0.6
Condividi questo immobile su: